Sliding Systems

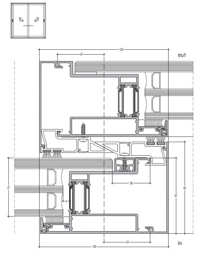
ET70

ET70 is a high-end sliding window system with thermal-break, suitable for opposed balcony doors and windows with high requirements for thermal insulation, functionality and aesthetics.

 

  • Elegant straight design
  • Excellent water-tightness and air-permeability
  • High thermal insulation
  • Glazing sash with 70.0 mm width allowing glass panel from 20.0 up to 50.0 mm
  • Ability of minimum aluminium appearance (Less Frame) at the external side.
  • Function ability by electric mechanism.
  • Maximum weight per sash 400 kg.

 

PERFORMANCE CHARACTERISTICS OF E70

Characteristic Classification                                                 value Standard

Air permeability Up to class 4                                                   EN 1026 / EN 12207

Watertightness Up to class E750                                             EN 1027 / EN 12208

Resistance to wind load Up to class C4                                 EN 12211 / EN 12210

Thermal transmittance from 1,5 W/m2.K                                 EN ISO 10077-2

 

Sliding Systems

Related Photos